Property details
  • Bruhome Property ID: 19162
  • Agent Property ID: (PROPERTY CODE : DH-410) KG SG KELUGOS
  • Price: BND 148,000
  • Bedrooms: 3
  • Bathrooms: 3
  • Car Park: N/A
Additional details

Description

Modern Double-Storey Detached House for Sale in Kg Sg Kelugos

Experience a peaceful lifestyle in a quiet and serene neighbourhood — perfect for families looking for comfort and convenience.

** Property Features:

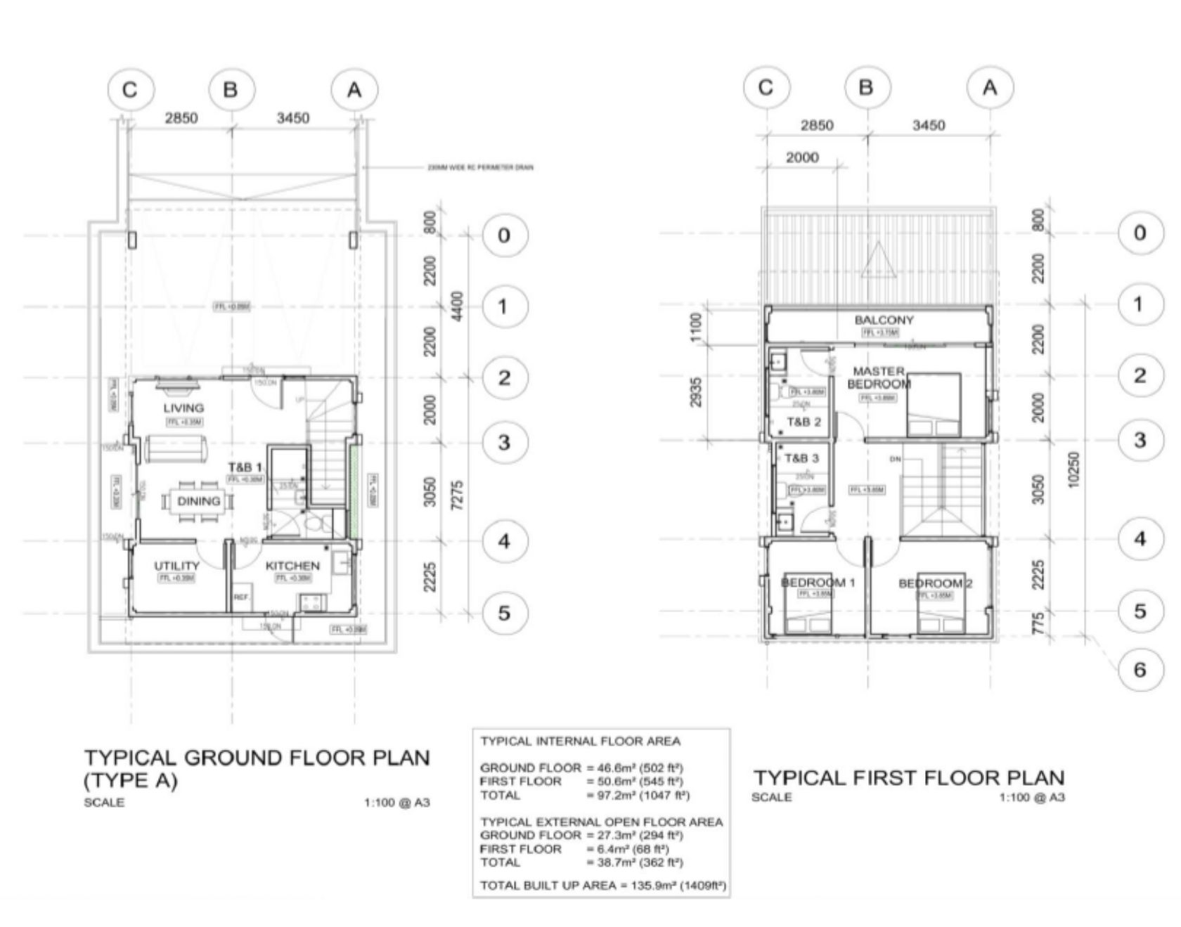
Ground Floor:
- Spacious living & dining area
- Common toilet
- Kitchen
- Utility room

First Floor:
- Master bedroom ensuite with balcony
- 2 bedrooms
- 1 common toilet
- Hallway

* Floor Area: 1,409 sq ft
* Land Size: 0.071 acres – 0.126 acres
* Tenure: Kekal
* Stage: Proposed
* Selling Price: $148,000 – $158,000
* Payment: Cash or bank loan only
* Prices are subject to change without prior notice

** Enjoy quiet surroundings and modern living at an affordable price! **

Interested, kindly call or whatsapp, 711 8577 (Alice)

Stay connected with us:
Facebook: G.A. Real Estate Agency
Instagram: g.a.realestate



Schedule a visit
Verification Code

Similar properties
2 Storey Detached House buy
JS/72/2-D
Jangsak, Brunei-Muara District
0 day ago
BND 292,000
  • 4
  • 4
  • 2
2 Storey Detached House buy
(PROPERTY CODE : DH-413) TG BUNUT
Tanjong Bunut, Brunei-Muara District
2 days ago
BND 335,000
  • 5
  • 6
  • N/A
2 Storey Detached House rent
(PROPERTY CODE : HFR-344) KG SG TILONG
Sungai Tilong, Brunei-Muara District
8 days ago
BND 4,200
  • 5
  • 5
  • N/A
2 Storey Detached House buy
SNR/09/2-D
Bengkurong, Brunei-Muara District
14 days ago
BND 330,000
  • 5
  • 5
  • N/A
2 Storey Detached House buy
MLT/62/2-D
Pasai, Brunei-Muara District
16 days ago
BND 328,000
  • 4
  • 4
  • 2
2 Storey Detached House buy
(PROPERTY CODE : DH-411) LUMAPAS
Lumapas 'A', Brunei-Muara District
18 days ago
BND 148,000
  • 4
  • 3
  • N/A
2 Storey Detached House buy
(PROPERTY CODE : DH-409) MENTIRI
Mentiri, Brunei-Muara District
23 days ago
BND 279,000
  • 4
  • 5
  • N/A
2 Storey Detached House buy
(PROPERTY CODE : DH-408) MENTIRI
Mentiri, Brunei-Muara District
1 month ago
BND 288,000
  • 4
  • 5
  • N/A
2 Storey Detached House rent
JM/255/2-D
Kapok, Brunei-Muara District
1 month ago
BND 1,500
  • 4
  • 3
  • 3

Advertise Your Property in Bruhome?